
1 - кімнатні квартири. Площа 40.8 м2
Стіни ЖК зведені з повнотілої, керамічної цегли товщиною 380мм. Фасад декорований зносостійкого камінцевою штукатуркою і виконаний за системою Церезіт з утеплювачем товщиною 100 мм.

Характеристики

1 - кімнатні квартири. Площа 40.8 м2

1 - кімнатні квартири. Площа 42.8 м2

1 - кімнатні квартири. Площа 46.6 м2

2 - кімнатні квартири. Площа 57.3 м2

2 - кімнатні квартири. Площа 63 м2

2 - кімнатні квартири. Площа 67.3 м2

2 - кімнатні квартири. Площа 67.8 м2

2 - кімнатні квартири. Площа 69.7 м2

2 - кімнатні квартири. Площа 71 м2

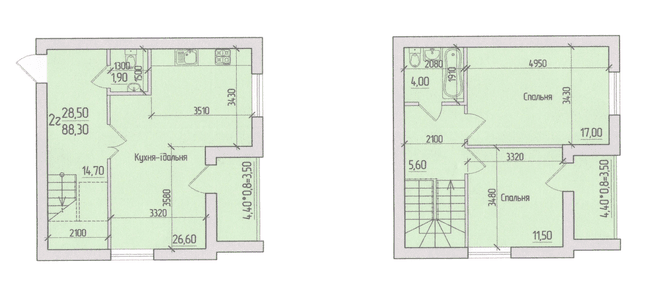
2 - кімнатні квартири. Площа 88.8 м2

4 - кімнатні квартири. Площа 130.4 м2

5 - кімнатні квартири. Площа 137.9 м2

5 - кімнатні квартири. Площа 140.1 м2
Богдана Хмельницького 2а, Київська обл. смт Гостомель, 08291